名古屋市で半世紀以上の実績と安心
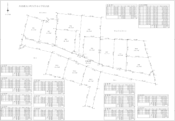
当社では、宅地開発にかぎらずお客さまのご要望に合わせたさまざまな用途、規模の造成設計をおこなっております。各種法令の許可基準を満たし、コスト面や、周囲環境にも配慮した設計となるよう長年培った技術で対応いたします。
開発許可・建築許可申請




- 開発許可・建築許可制度の概要
- 開発許可・建築許可制度は、都市近郊における無秩序な市街化を防止するため、市街化を促進すべき市街化区域と市街化を抑制すべき市街化調整区域とに区分するとともに、区分した目的を担保するため、一定の基準を設けて都市計画法の許可により良質な宅地水準を確保する制度のことです。宅地を分譲するために道路(開発道路)を築造したりする場合には開発許可、市街化調整区域において建築物を建築する場合には建築許可を受ける必要があります。
- 開発行為とは
- 開発行為とは、「主として建築物の建築または特定工作物の建設の用に供する目的で行う区画形質の変更をいう。」と定義されます。
(1)「建築」とは建築物を新築、増築、改築又は移転すること
(2)「特定工作物」には第1種特定工作物(とコンクリートプラント等)第2種特定工作物(ゴルフコース、1ha以上のレジャー施設等)があります。 - 区画、形質の変更とは下記のようなケースが該当します
- 区画の変更…道路、水路、防火水槽等の公共施設の新設、変更又は廃止などを行うこと。
形質の変更…切土・盛土等による土地の物理的形状の変更(愛知県では、30センチ以上の切盛を行うものを開発行為として取り扱っています。)なお、下記のような場合は開発行為に該当しません。
※区画形質の変更が行われる土地に建築物の建築または特定工作物の建設をしない場合(砂利の採取など)
※屋外コンクリートの土間のコンクリートを撤去、整地して建築物の敷地とするとき
※単なる土地の分合筆(権利区画の変更)
※建築物の建築自体と不可分な一体の工事と認められる基礎打ち、土地の掘削等の行為のみの場合
開発許可を必要とする場合
開発行為を行う場合、行為の着手前に都道府県知事(指定都市、中核市、特例市は市長)の許可を受けなければなりません。開発許可の申請は、次のような場合に必要です。
| 都市計画区域 | 市街化区域 | 500m2以上の開発行為 |
|---|---|---|
| ※東三河地域では1,000m2以上 | ||
| 市街化調整区域 | 一定の場合を除く全ての開発行為 | |
| 未線引き区域 | 3,000m2以上の開発行為 | |
| 準都市計画区域 | 3,000m2以上の開発行為 | |
| 都市計画区域外 | 10,000m2以上の開発行為 | |
建築許可を必要とする場合
無秩序な市街化防止の趣旨から、市街化調整区域において建築物を建築する場合には開発行為をともなわない場合でも開発許可に代わる建築許可が必要になります。したがって、市街化調整区域において建築物を建築する場合には、開発許可もしくは建築許可いずれかの許可が必要になります。
- 市街化調整区域の許可基準
- 市街化調整区域は、市街化を抑制すべき区域であるため、許可の基準に適合していなければ許可を受けることができません。主な許可基準は、次のとおりです。
1.公益上必要な建築物および日常生活のための必要な店舗等
(例)学校、社会福祉施設、クリニック、コンビニ、美容院 など
2.鉱物資源、観光資源の利用上必要なもの
(例)セメント製造業の施設、温泉施設、神社 など
3.農林水産物の処理等の施設
(例)製粉業の施設、畜産食品製造業の施設 など
4.農林業等活性化のための施設
(例)地域特産物展示販売施設(道の駅)、農林業体験学習施設 など
5.中小企業振興のための施設
6.既存工場と密接な関連を有する事業場
7.火薬庫
8.沿道施設と火薬類製造所
(例)道路管理施設、休憩所(レストラン等)、ガソリンスタンド など
9.地区計画または集落地区計画区域内の開発行為
10.条例で指定した土地の区域内において行う開発行為
11.市街化を促進するおそれがない等と認められる条例で定める開発行為
12.既存権利者の開発行為
13.その他やむを得ない開発行為
· 分家住宅の建築
· 事業所の社宅や寄宿舎の建築
· 既存集落内のやむを得ない自己用住宅
· 市街化調整区域にある既存工場のやむを得ない拡張
· 老人ホーム
· 介護老人保健施設の建築
· 既存住宅の増築等のためのやむを得ない敷地拡大
· 相当期間適正に利用された住宅のやむを得ない用途変更
· 市街化調整区域決定前からの宅地における建築 など
宅地造成等規制法に関する許可
この法律は、宅地造成に伴いがけ崩れや土砂の流出のおそれが著しい区域を「宅地造成工事規制区域」に指定し、この区域で行われる宅地造成工事について災害防止のために必要な規制を行い、生命及び財産の保護を図ることを目的としています。




- 宅地造成工事の規制区域
- 宅地災害の恐れがある区域として知事や市が指定した宅地造成工事規制区域があります。この区域内で次のいずれかに該当する宅地造成をおこなう場合は、原則として知事や市の許可が必要です。名古屋市内の場合は千種区内、昭和区内、瑞穂区内、守山区内、緑区内、名東区内、天白区内に宅地造成工事規制区域が指定されています。
- 許可を要する工事
- 1.切土の場合で、高さが2メートルを超えるがけができるもの。
2.盛土の場合で、高さが1メートルを超えるがけができるもの。
3.切土と盛土を同時にする場合で、盛土部分に1メートル以下のがけができ、かつ、切土と盛土を合わせて2メートルを超えるがけができるもの。
4.切土または盛土をする土地の面積が500平方メートルを超えるもの(面積は、水平投影面積です。また、建築物の建築自体と不可分な一体の工事と認められる切盛土は、造成面積に含まないものとする。)
1、2、3に述べたがけとは、地表面が水平面に対し30度をこえる角度をなす土地で、これらのがけは原則として法律で定められた技術的基準に適合する擁壁でおおわれなければなりません。ただし、切土により崖が生じる場合は緩和規定があります。
工事完了の検査
工事が完了したときは、「宅地造成に関する工事の完了検査申請書」を各市町村に提出します。工事写真の撮影は重要ですのでしっかりと寸法等がわかる写真を撮っておきましょう。また、中間検査が必要な場合もありますので気をつけましょう。検査の結果、工事が技術的基準に適合していれば、知事や市が検査済証を交付してくれます。
- 他の法令との関連
- (1)宅地造成等規制法により許可を受けなければならない宅地造成に関する工事の一環として行われる擁壁の設置工事については、建築基準法による工作物確認の必要はありません。
(2)都市計画法の開発許可を受けた宅地造成工事については、宅地造成工事の許可は必要ありません。
(3)以上のほかに他の法令との関連は定められていませんので次の点に十分注意してください。
ア 都市計画法、農地法、森林法、急傾斜地の崩壊による災害の防止に関する法律、砂防法等の法令により宅地造成をすることを制限または禁止されている土地がありますので、あらかじめ調査してください。
イ 都市計画法、道路法、河川法、下水道法、砂防法、土地区画整理法、急傾斜地の崩壊による災害の防止に関する法律等の法令により認可、許可、届出、同意等を必要とすることがありますのでそれぞれ別途に手続きを行ってください。
ウ 建築物の敷地にする目的で宅地造成に関する工事の許可を受けても、建築基準法による建築確認、道路の位置の指定が受けられないことがありますので、関係部局との打合せ等の後、宅地造成に関する工事の許可申請書を提出してください。

